Your Builder of Choice in the Greater DC Metro Area
(703) 997-1618
Email: DreamHome@Anchor-Homes.com
www.MyAnchorHomes.com

新房预告 | 6645 Hallwood Avenue
安客新居
Posted: 4/17/2026

设计、施工:Anchor Homes
地址:6645 Hallwood Ave, Falls Church, VA 22046
价格: $1,888,888 (预售特价)
公司网址:https://available-homes.myanchorhomes.com/6645

这栋现代风格的住宅由 Anchor Homes 精心打造,处处散发着奢华气息。位于福尔斯彻奇市中心,地理位置优越,距离市中心的商店、餐饮和娱乐场所仅几分钟路程。这栋住宅交通便利,可轻松前往主要通勤路线和顶级学校,完美平衡了郊区魅力和城市便利。不要错过这个,为奢华现代生活而精心设计的住宅。
Bath:6
Bed:6
Garage:2-Car
Living Area:5,214 sqft
Lot Size:0.23 Acres
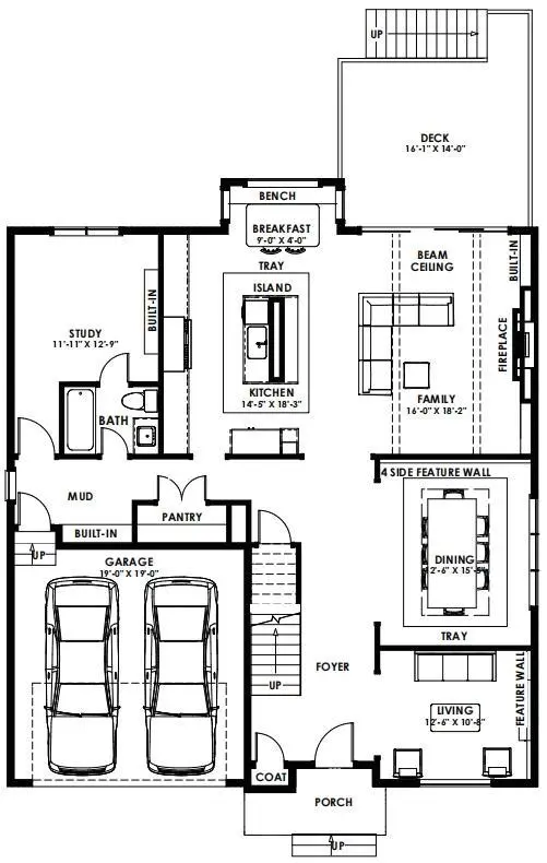
一层平面介绍
Main Level

一层布局多个功能区 :家庭娱乐室、厨房、餐厅、客厅、书房、食品储藏间、沾泥物品寄存室及车库等。


▲餐厅(Dining)& 门厅(Foyer)


▲厨房(Kitchen)
商用级顶级电器,配以堆叠式橱柜,橱柜内/橱柜下皆设置充足的照明,厨房正中安置宽敞的瀑布吧台和酒吧座位,可在开放式厨房中实现每个厨师的梦想。


▲家庭娱乐室(Family Room)
家庭娱乐室区域装饰有壁炉,电视储物架,以及富有特色的天花板。大面积玻璃幕墙的设置,可直通户外,室内室外相互交融,别具一格。

▲书房(Study)
书房套间简洁明了,融合现代风格线条与设计手法。完善的书房套间亦可设计为卧室套间。

▲泥污储藏室(Mudroom)

▲餐具室(Butler)

▲楼梯间(Stair)
二层平面介绍

经过精心设计的二楼布局,设有主卧套房,带有宽敞的步入式衣帽间、独立卫浴间,以及4间带浴缸和步入式衣帽间的次卧。所有房间面积宽敞,自然光线充足!


▲主卧(Master Bedroom)
舒适宽敞、功能复合的主卧套房,三连窗让空间视野更加通透,精心设计的背景墙使房间多了一分时尚感。附带的休闲区域,使得整个主卧套间更有格调。

▲主卧卫浴及衣帽间(Master suit)
主卫设置深浸浴缸,双人洗手盆和玻璃淋浴区,满足了基本功能需求;规则式吊顶使得整个空间层次更加丰富。

▲次卧(Secondary Bedrooms)
次卧延用主卧的柔和色调,静谧,休闲,为身心放松营造良好环境。

▲洗衣房(Laundry)

▲次卧卫浴(Secondary Bath)
地下室平面介绍

开放式地下室,带有宽敞的娱乐室,名家设计的湿吧,健身房/游戏厅,专业设计的家庭影院将为家庭带来许多优质的夜晚。

▲娱乐室(REC)
下层拥有超2,000平方英尺的豪华生活空间,体验与主楼层相同的生活质量,可徒步至后院,并拥有充足的照明设备。

▲吧台(Wet Bar)
娱乐室一角设置开放式吧台,作为一处休憩节点,方便使用,也不会影响娱乐室整体空间的通畅。
我们拥有强大的设计团队
我们对建筑有执着的品质追求
我们有严格的品质把控
专注于品质服务
为您打造精品豪宅
我们是Anchor Homes
联系我们
ANCHOR HOMES
TEL:(703)997-1618
Email:DreamHome@Anchor-Homes.com
Address:6862 Elm St, Ste 110, McLean, VA 22101, US
TEL:(703)997-1618
扫码关注
获取更多优质新房信息

Last update: 4/17/2026
Astar Education Institute
CNA, CMA & PCA



Astar Education Institute
Address:7864 Donegan Drive
Direct: 703-368-6838
Fax: 703-368-6837
Web: www.astarinstitute.org
Authorized testing center for:


爱思达职业培训学院
详情可电:202-628-8180 (中文); 703-368-6838 (English)
地址:7864 Donegan Drive, Manassas, VA 20109















