Your Builder of Choice in the Greater DC Metro Area
(703) 997-1618
Email: DreamHome@Anchor-Homes.com
www.MyAnchorHomes.com

新房预告 | 911 Desale Street Southwest
安客新居
Posted: 4/03/2026

设计、施工:Anchor Homes
地址:911 Desale Street Southwest, Vienna, Virginia 22180
价格: $2,499,999 (预售特价)
公司网址:https://available-homes.myanchorhomes.com/911

911 Desale St SW, 这是我们最受欢迎的模型之一“𝐀𝐯𝐨𝐧 𝐌𝐨𝐝𝐞𝐥”!坐落在超级理想的位置,靠近𝐂𝐮𝐧𝐧𝐢𝐧𝐠𝐡𝐚𝐦 𝐏𝐚𝐫𝐤 𝐄𝐥𝐞𝐦𝐞𝐧𝐭𝐚𝐫𝐲 𝐒𝐜𝐡𝐨𝐨𝐥,𝐓𝐡𝐨𝐫𝐞𝐚𝐮 𝐌𝐢𝐝𝐝𝐥𝐞 𝐒𝐜𝐡𝐨𝐨𝐥,𝐌𝐚𝐝𝐢𝐬𝐨𝐧 𝐇𝐢𝐠𝐡 𝐒𝐜𝐡𝐨𝐨𝐥。位置便利,靠近主要通勤路线,距离 Dunn Loring, Vienna Metro, and amenities in Vienna, Tysons Corner, and the Mosaic,仅有很短的车程。住宅毗邻 Southside 公园、Wildwood 公园、Nottoway 公园和 W & OD 步道,等。拥有超 7,700 sqft 的起居空间,将精致与实用完美融合。无论您是想举办聚会,抑或是在自己的私人绿洲放松身心,这处房产都能满足您所有的生活方式需求。
Bath:7.5
Bed:7
Garage:3-Car
Living Area:7,770 sqft
Lot Size:0.37 Acres
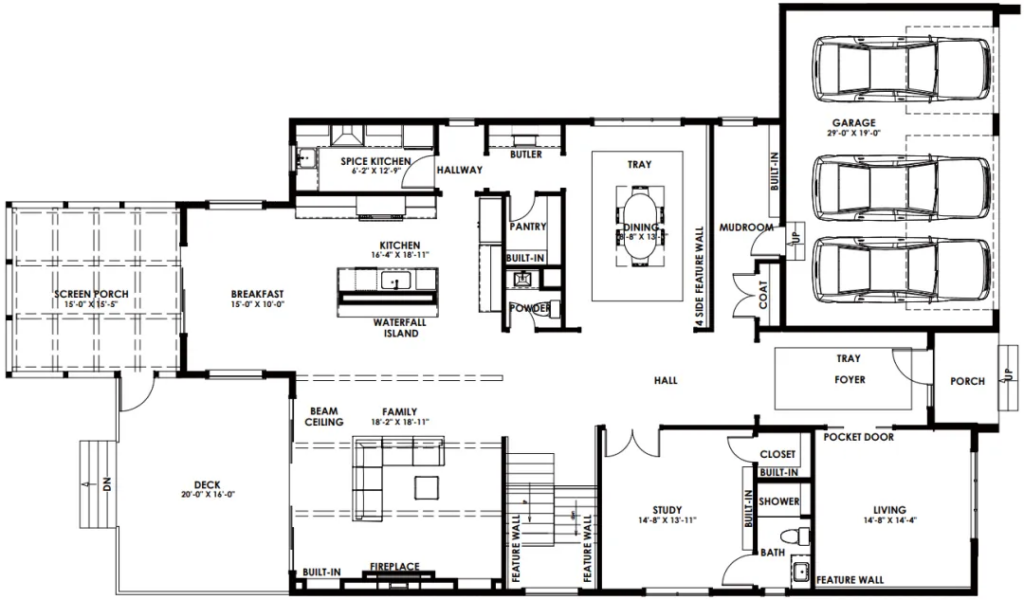
一层平面介绍
Main Level

一层布局多个功能区 :家庭娱乐室、厨房、餐厅、客厅、书房、食品储藏间、沾泥物品寄存室及车库等。

▲门厅(Foyer)

▲餐厅(Dining)

▲客厅(Living)
进入大门,充满自然采光的开敞式门厅和起居区随即呈现。餐厅装潢令人惊叹,将优雅与精致完美融合。


▲厨房(Kitchen)
商用级顶级电器,配以堆叠式橱柜,橱柜内/橱柜下皆设置充足的照明,厨房正中安置宽敞的瀑布吧台和酒吧座位,可在开放式厨房中实现每个厨师的梦想。


▲家庭娱乐室(Family Room)
家庭娱乐室区域装饰有壁炉,电视储物架,以及富有特色的天花板。大面积玻璃幕墙的设置,可直通户外,室内室外相互交融,别具一格。

▲书房(Study)
书房套间简洁明了,融合现代风格线条与设计手法。完善的书房套间亦可设计为卧室套间。

▲泥污储藏室(Mudroom)
车库入户一侧设计有通顶的储物柜,将实用与美感合二为一。

▲餐具室(Butler)

▲卫生间(Powder)

▲楼梯间(Stair)
二层平面介绍

经过精心设计的二楼布局,设有主卧套房,带有宽敞的步入式衣帽间、独立卫浴间,以及4间带浴缸和步入式衣帽间的次卧。所有房间面积宽敞,自然光线充足!


▲主卧(Master Bedroom)
舒适宽敞、功能复合的主卧套房,三连窗让空间视野更加通透,精心设计的背景墙使房间多了一分时尚感。附带的休闲区域,使得整个主卧套间更有格调。d

▲主卧卫浴及衣帽间(Master suit)
主卫设置深浸浴缸,双人洗手盆和玻璃淋浴区,满足了基本功能需求;规则式吊顶使得整个空间层次更加丰富。d

▲次卧(Secondary Bedrooms)
次卧延用主卧的柔和色调,静谧,休闲,为身心放松营造良好环境。

▲洗衣房(Laundry)

▲次卧卫浴(Secondary Bath)
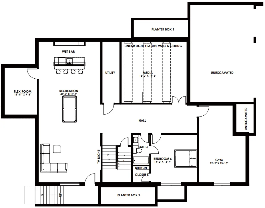
地下室平面介绍

开放式地下室,带有宽敞的娱乐室,名家设计的湿吧,健身房/游戏厅,专业设计的家庭影院将为家庭带来许多优质的夜晚。

▲娱乐室(REC)
下层拥有超2,000平方英尺的豪华生活空间,体验与主楼层相同的生活质量,可徒步至后院,并拥有充足的照明设备。

▲吧台(Wet Bar)
娱乐室一角设置开放式吧台,作为一处休憩节点,方便使用,也不会影响娱乐室整体空间的通畅。

▲家庭影院(Media)
我们拥有强大的设计团队
我们对建筑有执着的品质追求
我们有严格的品质把控
专注于品质服务
为您打造精品豪宅
我们是Anchor Homes
联系我们
ANCHOR HOMES
TEL:(703)997-1618
Email:DreamHome@Anchor-Homes.com
Address:6862 Elm St, Ste 110, McLean, VA 22101, US
TEL:(703)997-1618
扫码关注
获取更多优质新房信息

Last update: 4/03/2026
Astar Education Institute
CNA, CMA & PCA



Astar Education Institute
Address:7864 Donegan Drive
Direct: 703-368-6838
Fax: 703-368-6837
Web: www.astarinstitute.org
Authorized testing center for:


爱思达职业培训学院
详情可电:202-628-8180 (中文); 703-368-6838 (English)
地址:7864 Donegan Drive, Manassas, VA 20109















