Your Builder of Choice in the Greater DC Metro Area
(703) 997-1618
Email: DreamHome@Anchor-Homes.com
www.MyAnchorHomes.com

热门户型:The Merlot,广受好评!
安客新居
Posted: 6/28/2025
户型:The Merlot
设计、施工:Anchor Homes
价格:Starting From $800,000
公司网址:https://www.myanchorhomes.com

设计原则
►美观性
美观原则即颇具艺术性,设计师会结合业主性格、审美标准、个人兴趣等因素综合考虑,力求做到个性化。
►实用性
居住需求隐私,待客需求完善,能极大容纳主人的个人爱好。不仅仅满足当下的实用性能,运用场景,还会为您考虑未来几年的年龄变化,人员结构变动等。
►安全性
在使用材料上确保经济环保,防止装修污染;对于水电材料和水电建设项目,要比建筑行业高两个层次。
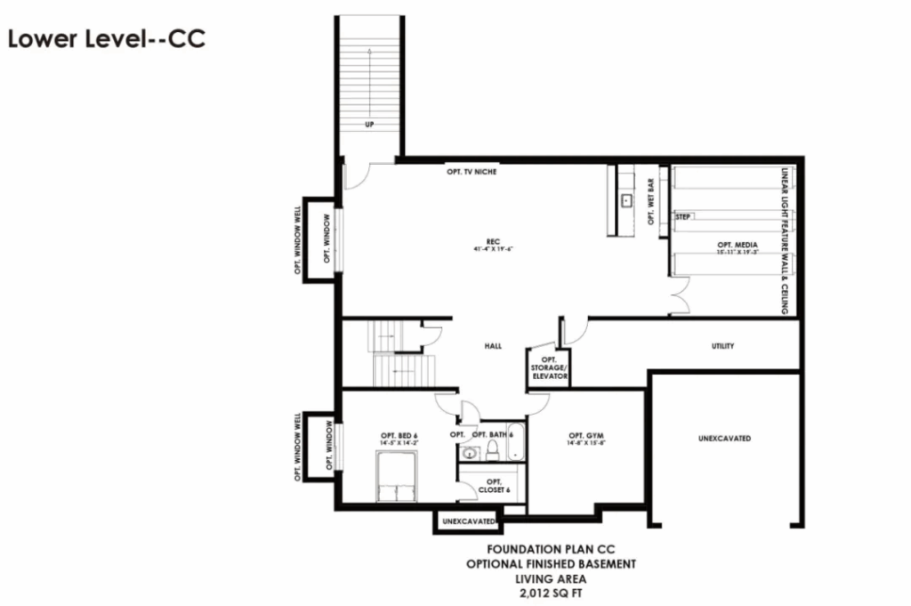
01 户型平面
The Merlot 户型
室内空间自由延伸,内外空间相互交融
多设玻璃窗,最大限度让自然透入室内
具有良好的功能性
适于人们日常居住的人性化色彩
…
房屋尺寸:65W x 45D
建筑面积:6,022 ~ 6,462 SQFT
卧室:7+ 间
卫浴:5.5 ~ 6.5+ 间
车库:2 ~ 3 车库










02 外观效果
The Merlot 拥有多种立面风格
利落的线条和回转的空间
充满现代美感
为房屋平添了很多诱人的温暖和谦逊的魅力

△ 基础立面效果图,主体采用浅色系材质,营造简单明媚的氛围。

△ Farmhouse风格立面效果图,改变了一味的直线设计,多层次的凹凸成为住宅的一大亮点。


△ 现代风格立面效果图,清晰的纹路勾勒出精致的立面,尽显其奢华。



△ 砖石风格立面效果图,如同一幅山水立轴,唯美而简约。
03 性价比
起价仅$800,000
注重经济型户型
极具市场竞争力
超值性价比新房户型
我们拥有强大的设计团队
我们对建筑有执着的品质追求
我们有严格的品质把控
专注于品质服务
为您打造精品豪宅
我们是Anchor Homes
联系我们
ANCHOR HOMES
TEL:(703)997-1618
Email:DreamHome@Anchor-Homes.com
Address:6862 Elm St, Ste 110, McLean, VA 22101, US
TEL:(703)997-1618
扫码关注
获取更多优质新房信息

Last update: 6/28/2025



















